АРХИТЕКТУРНЫЕ ПЛАНЫ

  • amazon tower XIV architectural plans 1
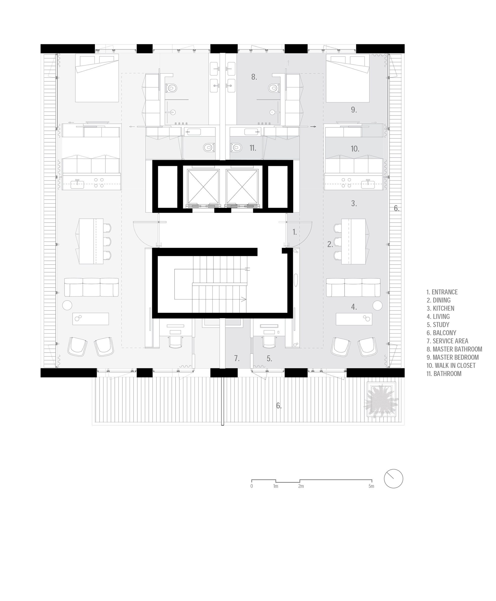
  • amazon tower XIV architectural plans 2
  • amazon tower XIV architectural plans 3
  • amazon tower XIV architectural plans 4
  • amazon tower XIV architectural plans 5